Отдел продаж
Обратный звонок
Режим работы:
Обработка заказов с 09:00 до 19:00 ежедневно

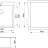
| Модель | 5102 (Базальт) |
| Длина | 50.5 см |
| Бренд | Granula |
| Ширина | 51.5 см |
| Цвет | серый |
| Материал | искусственный гранит |
| Установка | врезная |
| Форма | квадратная |
| Высота чаши | 19 см |
| Число основных чаш | 1 |
| Измельчитель пищевых отходов | нет |
| Крыло | нет |
| Клапан-автомат | нет |
| Диаметр сливного отверстия | 3.5 " |
| Ширина шкафа | 50 см |
| Ширина чаши | 40.5 см |
| Глубина чаши | 44 см |
| Ширина монтажного отверстия под мойку | 48.5 см |
| Глубина монтажного отверстия под мойку | 49.5 см |
Загрузка данных...