Отдел продаж
Обратный звонок
Режим работы:
Обработка заказов с 09:00 до 19:00 ежедневно

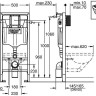
| Модель | Rapid SL |
| Бренд | Grohe |
| Ширина | 50 см |
| Высота | 113 см |
| Тип | инсталляция для унитаза |
| Комплектация | смывное колено |
| Максимальная нагрузка | 400 кг |
| Режим смыва | старт/стоп |
| Кнопка смыва | есть |
| Система смыва | пневматическая |
| Цвет рамы | синий |
| Глубина монтажа | 14.5 см |
| Тип монтажа | перед стеной |
| Материал рамы | сталь |
| Объем смыва | 6/9 л |
| Регулируемая рама | есть |
| Подключение воды | слева, сзади, справа |
Загрузка данных...