Отдел продаж
Обратный звонок
Режим работы:
Обработка заказов с 09:00 до 19:00 ежедневно

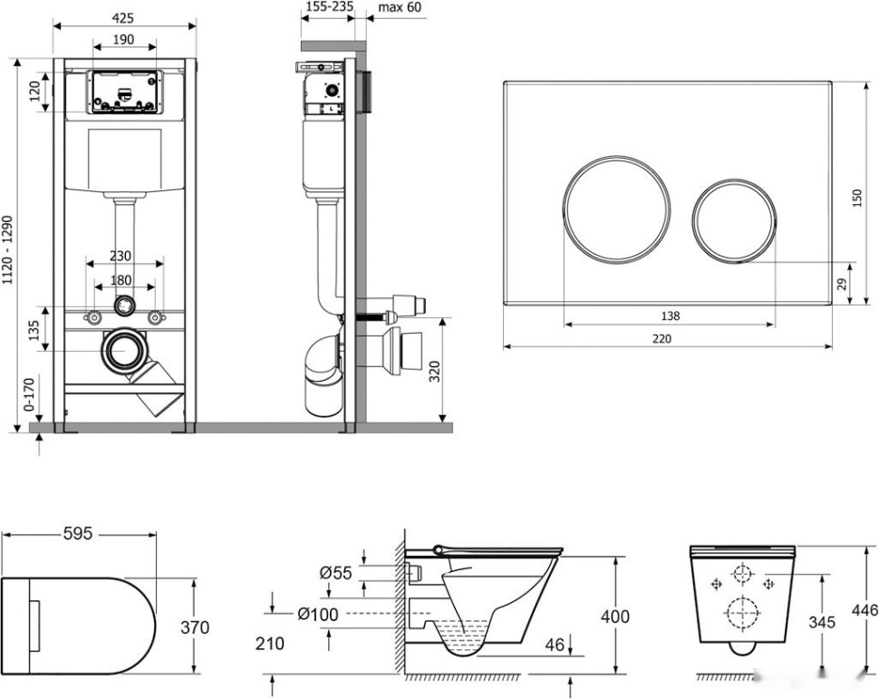
| Модель | Smart V-Clean 7 в 1 87561169 |
| Бренд | Lavinia Boho |
| Ширина | 37 см |
| Высота | 35.4 см |
| Цвет | белый |
| Глубина | 59.5 см |
| Конструкция | без бачка |
| Монтаж | подвесной |
| Материал сиденья | дюропласт |
| Подвод воды | задний |
| Выпуск | горизонтальный |
| Слив | двухрежимный |
| Сиденье в комплекте | есть |
| Антибактериальное покрытие | есть |
| Пневмокрышка | есть |
| Бачок в комплекте | есть |
| Функция биде | есть |
Загрузка данных...