Отдел продаж
Обратный звонок
Режим работы:
Обработка заказов с 09:00 до 19:00 ежедневно

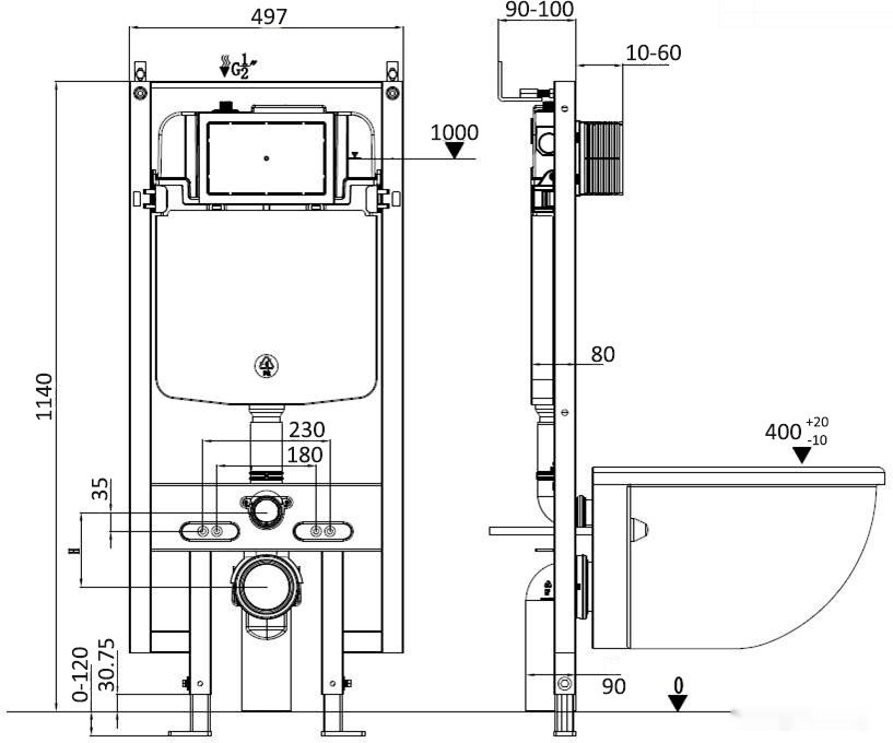
| Модель | Amberg 497 |
| Бренд | Weltwasser |
| Ширина | 49.7 см |
| Высота | 114 см |
| Глубина | 10 см |
| Тип | инсталляция для унитаза |
| Назначение | для унитаза |
| Конструкция | рамная |
| Режим смыва | двухрежимный |
| Кнопка смыва | есть |
| Цвет кнопки | белый |
| Система смыва | механическая |
| Тип монтажа | на пол, в капитальную стену, в некапитальную стену |
| Материал рамы | металл |
| Смывной бачок | есть |
Загрузка данных...